ID CP2967640

Casă individuală cu vedere la lac – Apahida

ID CP2967640

160,000 €

Casă / Vilă cu 5 camere de vânzare
Campenesti
119 mp
2025

Vă oferim spre vânzare o casă individuală situată în Apahida, într-o zonă liniștită, cu vedere spre lac, ideală pentru cei care își doresc confort, spațiu și posibilitatea de a-și personaliza locuința după propriul stil.

Imobilul se predă la stadiul de semifinisat în interior și finisat în exterior, oferind flexibilitate totală pentru amenajarea fiecărui detaliu după preferințele viitorilor proprietari.

Casa dispune de încălzire în pardoseală, instalații trase la poziție, șape și tencuială, fiind pregătită pentru etapa de finisare finală.

Detalii proprietate

Suprafață teren: 452 mp

Suprafață utilă: 119 mp

Suprafață desfășurată: 160 mp

Regim de înălțime: Parter + Etaj + Mansardă circulabilă

Structură: cărămidă

Locuri de parcare: 2 în curte

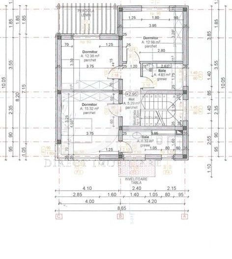
Compartimentare

Parter:

-living spațios

-bucătărie separată

-baie

-hol

-magazie / spațiu de depozitare

-terasă

Etaj:

-3 dormitoare

-2 băi

Mansardă:

-spațiu circulabil și utilizabil (ideal pentru depozitare sau amenajare ulterioară)

Utilități

-apă

-Gaz

-curent

-toate utilitățile sunt trase până în casă și branșamentele sunt realizate

-canalizarea orașului este în curs de realizare

Alte avantaje

-vedere frumoasă către lac

-zonă liniștită, potrivită pentru familie

-compartimentare eficientă pentru un stil de viață modern

-acces facil către punctele de interes din zonă

-terenul nu este concesionat (proprietate)

📞 Pentru detalii suplimentare și programarea unei vizionări, vă rugăm să ne contactați telefonic.

Citește mai mult

  • Număr camere
    5
  • Dormitoare
    4
  • Număr bucătării
    1
  • Număr băi
    3
  • Geam la baie
    Da
  • Număr locuri parcare
    2
  • Disponibilitate
    Imediat
  • Tip casă
    Individual
  • Stare interior
    Semifinisat
  • Anul finisării
    2026
  • Suprafață utilă
    119 mp
  • Suprafață construită
    160 mp
  • Suprafață teren
    452 mp
  • Suprafață curte
    330 mp
  • Acoperiș
    Țiglă
  • Stadiu construcție
    Finalizată
  • An construcție
    2025
  • Construcție nouă
    Da
  • Tip construcție
    Cărămidă
  • Reabilitat termic
    Da
  • Număr etaje clădire
    2
  • Are mansardă
    Da

Facilități

Apă
Apometre
Bucătărie închisă
Canalizare
Centrală proprie
Contor electric
Contor gaz
Curent
Curte
Ferestre PVC
Gaz
Grădină proprie
Încălzire prin pardoseală
Izolație exterioară
Nemobilat
Parcare deschisă
Șapă
Străzi neamenajate
Ușă intrare metal
Vedere spre munte
Cristina Socaci
Consultant Imobiliar

0747353752


Solicită chiar acum o vizionare
Telefon
Sună acum Solicită vizionare
Necesare:

Site-ul nu poate funcționa corect fără aceste cookie-uri. Vezi cookie-urile

Statistică:

Strângem statistici anonime despre voi, vizitatorii unici, pentru a vă îmbunătăți experiența dumneavoastră. Vezi cookie-urile

Marketing:

Pentru a ne promova mai eficient serviciile noastre, folosim cookies pentru a vă identifica și a vă oferi proprietăți și servicii personalizate. Vezi cookie-urile

Acest site folosește cookies, află detalii. Alege ce tipuri de cookies dorești să permitem: