ID CP2837903

Casă individula de vânzare în Baciu – | Zonă SunGarden

ID CP2837903

250,000 €

Casă / Vilă cu 4 camere de vânzare
Baciu
128 mp
2024

Casă individula de vânzare în Baciu – | Zonă SunGarden

📍 La doar 2 minute cu mașina de SunGarden

Casă modernă, P+E, ideală pentru o familie care își dorește spațiu, liniște și calitate superioară a construcției. Totul este pregătit pentru amenajarea interioară după propriul gust!

📐 Detalii proprietate:

• Suprafață teren: 583 mp

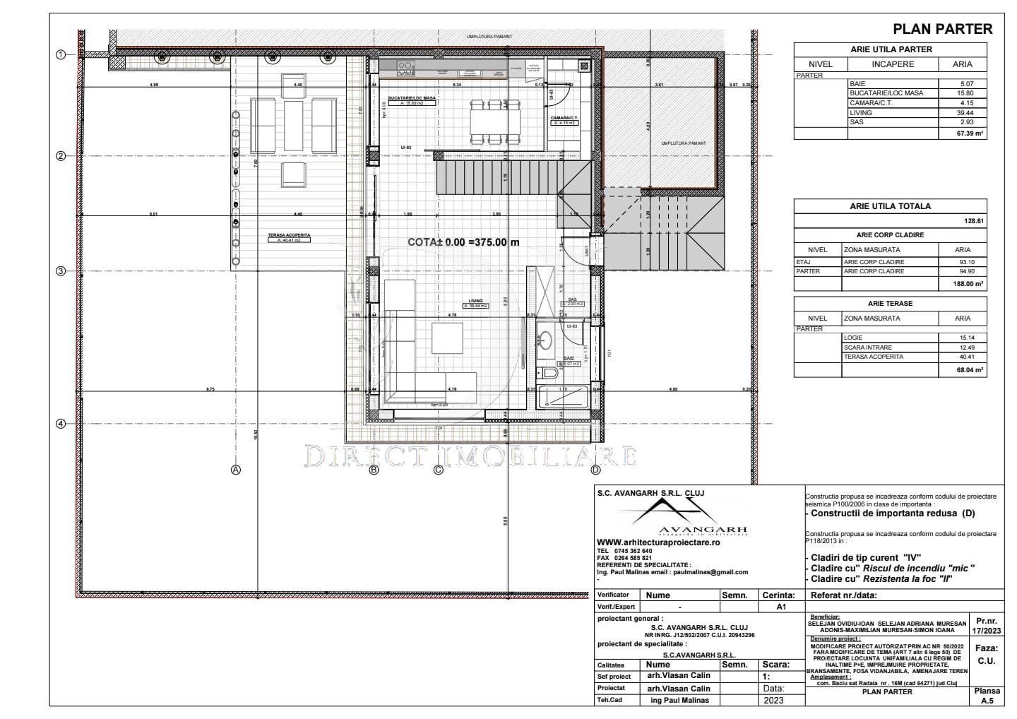
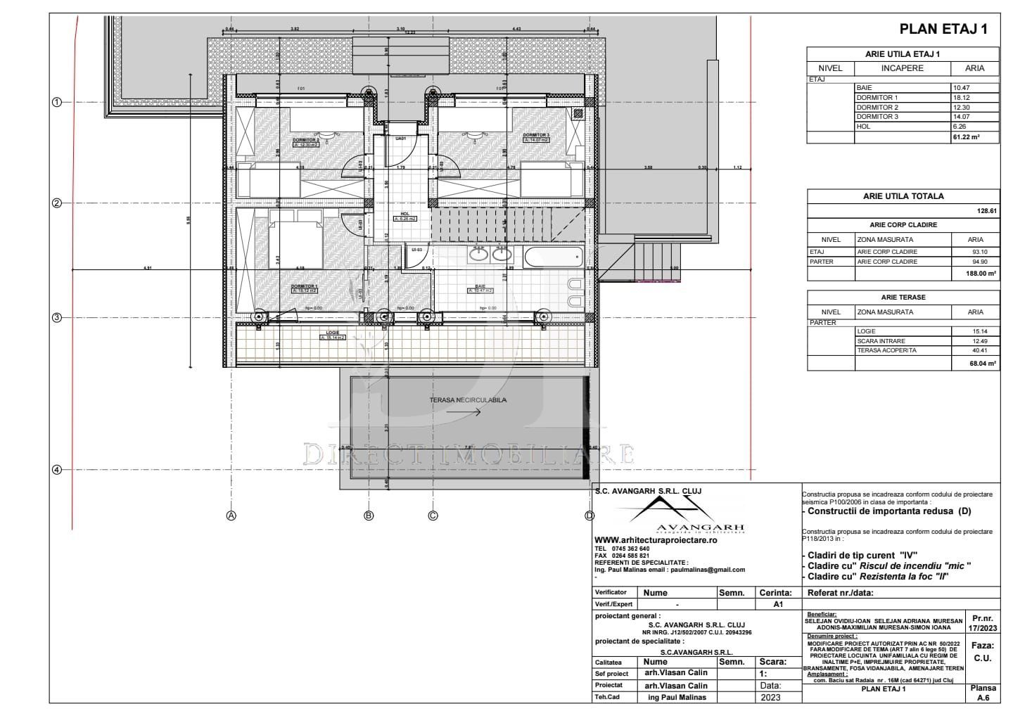
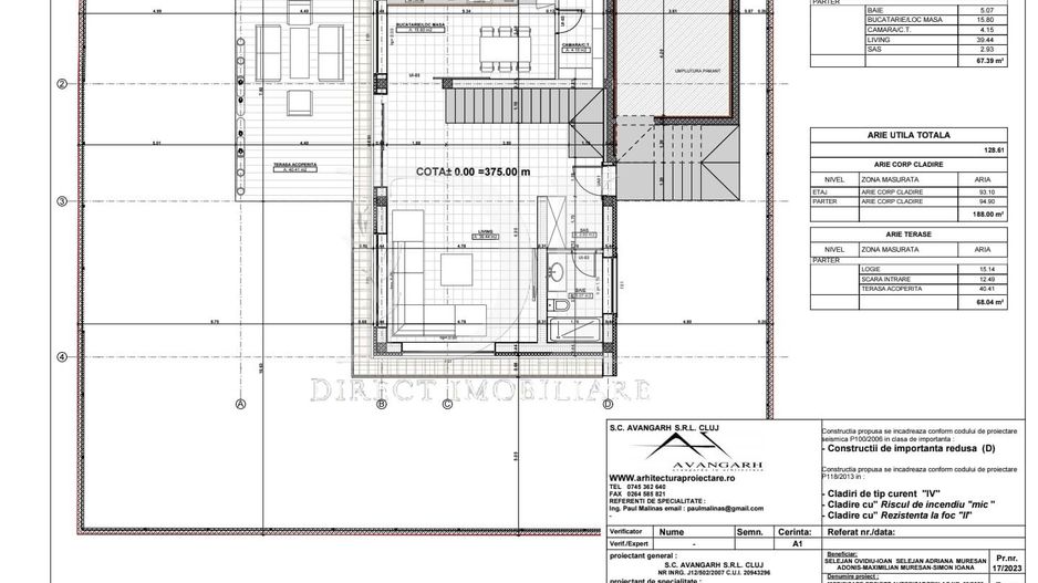
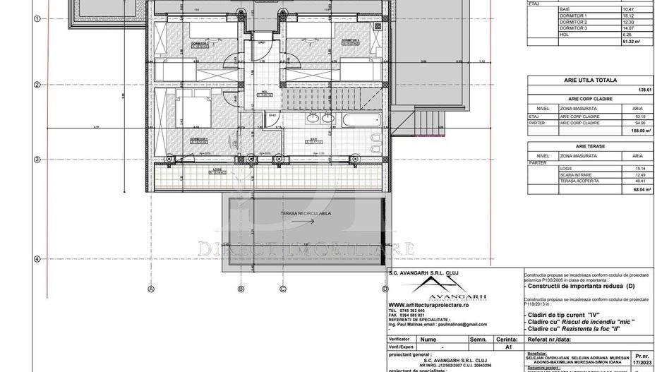
• Suprafață utilă: 128,61 mp

• Suprafață terase: 68,04 mp

• Regim înălțime: Parter + Etaj

• Interior: Semifinisat (tencuială pe bază de ciment, instalații sanitare și electrice la poziție)

• Placa superioară izolată

🛏️ Compartimentare:

Etaj:

• 3 dormitoare

• 1 dressing

• 1 baie

• 1 logie

• Hol

Parter:

• Bucătărie + cămară

• Living spațios

• 1 baie

• Terasă acoperită

• Spațiu tehnic

🔥 Echipare & utilități:

• Încălzire în pardoseală TECE

• Pompă de căldură Ferroli 12 kW – aer/apă (căldură & răcire)

• Panouri fotovoltaice 5 kW (Invertor Huawei, garanție 10 ani)

• Dosarul de prosumator inclus, se transferă direct pe noul proprietar!

• Garaj acoperit + priză pentru mașină electrică

• Curent + apă branșate (contori montați)

• Fibră optică instalată

🧱 Materiale premium:

• Cărămidă Cemacon 29 AR

• Izolație: Polistiren EPS80 Sika – 10 cm

• Tencuială decorativă siliconată Sika

• Geamuri Salamander profil 76, 3 sticle, 5 camere

• Poartă auto electrică Nice + videointerfon

• Curte amenajată cu gazon + pavaj Elis

💶 Preț: 250.000 €

📌 Se acceptă credit imobiliar.

Citește mai mult

  • Număr camere
    4
  • Dormitoare
    3
  • Număr bucătării
    1
  • Număr băi
    2
  • Număr balcoane
    1
  • Număr terase
    1
  • Număr garaje
    1
  • Disponibilitate
    Imediat
  • Tip casă
    Individual
  • Stare interior
    Semifinisat
  • Suprafață utilă
    128 mp
  • Suprafață teren
    583 mp
  • Suprafață curte
    450 mp
  • Suprafață terasă
    68 mp
  • Stadiu construcție
    Finalizată
  • An construcție
    2024
  • Construcție nouă
    Da
  • Tip construcție
    Cărămidă

Facilități

Apă
Apometre
Bucătărie deschisă
Canalizare
CATV
Contor electric
Contor gaz
Curent
Gaz
Geamuri tripan
Glet
Iluminat stradal
Încălzire prin pardoseală
Internet
Izolație exterioară
Mijloace de transport în comun
Nemobilat
Parcare acoperită
Pompă de căldură
Șapă
Străzi asfaltate
Telefon
Ușă intrare metal
Vedere panoramică
Ceclan Andrada Nicoleta - Direct Imobiliare
Ceclan Andrada Nicoleta
Manager

0747353752


Solicită chiar acum o vizionare
Telefon
Sună acum Solicită vizionare
Necesare:

Site-ul nu poate funcționa corect fără aceste cookie-uri. Vezi cookie-urile

Statistică:

Strângem statistici anonime despre voi, vizitatorii unici, pentru a vă îmbunătăți experiența dumneavoastră. Vezi cookie-urile

Marketing:

Pentru a ne promova mai eficient serviciile noastre, folosim cookies pentru a vă identifica și a vă oferi proprietăți și servicii personalizate. Vezi cookie-urile

Acest site folosește cookies, află detalii. Alege ce tipuri de cookies dorești să permitem: